上海十分罕见的全明梯厅产品,采光及通风都是绝佳体验;类一梯一户私享约7-9㎡独立梯厅空间,搭配精雕子母铸铝门以及天奕logo造型、定制贝母的门把手、无接触归家的智能门锁,尊崇入户仪式感带来不属于千万级产品的越…
售楼处官方预约电话:400-829-7773☎☎☎如有问题可来电咨询,预约销售专售楼处官方预约电话:400-829-7773☎☎☎如有问题可来电咨询,预约销售专员,一对一为您服务!
浦东改善鼎流爆款再创现象级热销!
保利天奕三批次认购两天!累积认购93组,认购率95.9%,再获改善市场热捧!
认购现场可谓是人声鼎沸,认购客户络绎不绝!
项目火爆的一大原因,来自本次加推全部为舒适性四房,市场具有一定稀缺性,尤其还有建面约170m²的楼王产品,唐镇8年一遇!
预计又将再续“两开两罄”的热销势头,拭目以待!



三批次主推建面约170m²楼王大平层、建面约118-135m²卷王四房,入市均价84576元/m²!
可以说保利天奕三批次产品,是当前浦东改善客户必选项!
理由1:价格真香,抢到怒省百万+!
l建面约118m²:最低上车门槛仅910万起(2楼),低楼层全部9字头就能上车,浦东热门板块正地铁口买到可变四房产品,可谓是最优选择!
l建面约125m²边套户型:四开间朝南+满飘窗赠送+类一梯一户设计,均价8.48万/m²价格要低于二批次同户型价格,975万即可上车!
l建面约135m²户型:尺度更大的舒适四房,均价在8.5万/m²,虽比首开提升1000元/m²,但作为项目逢开必罄的王牌户型,这个涨幅可谓是良心涨幅!
l建面约170m²鼎序大平层:不仅是唐镇8年一遇的终极改善,均价只有8.55万/m²,仅比135m²户型高500元/m²,远远低于常规大平层户型几千元的溢价,质价比拉满!
理由2:C位楼王,纯粹大宅圈层!
本次加推东3#、东4#,均位于东地块第二排,饱览约180米的核心景观轴,以及5大花园与1500m²的奕生活服务中心,视野效果独一份!

理由3:产品升级,内环顶豪同款超配!
本次加推建面约170m²大平层,不仅户型升级为奢华双套房+主卫双台盆+浴缸,精装上更进阶嘉格纳+博世超一线品牌、客厅升级万象山河奢石景墙,装修标准比肩市中心顶豪!
理由4:唐镇核心C位,全维顶配!
享地铁黄金2号线口,2大商业、三大学校、门前约1.7万方休闲绿地,全维成熟配套,位置在唐镇无出其右!
此前项目建面约135m²/170m²两大样板间盛大开放,示范区丛林童梦岛升级亮相,收获全城鼎流关注!本周六、周日,保利天奕将启动全新的“开学季”活动,迈阿密海滩主题泡泡大秀限时上演!感兴趣的大朋友小朋友们,一定不要错过!



保利天奕,两开两罄
张江新十年建面约104-170m²全新一代国际社区
恒温泳池会所,高压氧舱,保龄球馆
全明梯厅、女神四件套、10w+同款装标
2号线唐镇地铁口,3站张江,9站陆家嘴
三批次已取证
推出97套118-170㎡改善王牌产品
建面约170m²楼王大平层样板间已开放!
火爆认购中!
01
抢滩唐镇最佳窗口期
800万级已成唐镇“价格洼地”
保利天奕所在的唐镇板块,正在经历这样的价值爆发期!
从去年保利天奕溢价率26.6%,到上个月联发曹路地块40%溢价率,再到现在招商&港中旅地块40%的惊人溢价,未来新房预期已经在9W以上!相较之下,保利天奕仅8万/m²的均价,已经是唐镇新房市场的“价格洼地”。
要知道,保利天奕可是唐镇地铁口最后一块地,位于唐镇核心C位,六批次土拍不仅溢价率超高,距地铁也比保利天奕更远,无疑为保利天奕的性价比再度推波助澜!购房者抢在涨价之前上车,无疑是顺理成章!
目前保利天奕已经销售过半,全盘558套席位已售333套,整个项目仅剩225席!高溢价率的土拍市场,意味着现在不买,未来将面临出手就是100万的预算涨幅,同样预算只能买到次级板块新房,或者只能面积少一间房!保利天奕无疑是当前浦东购房的最高质价比优选!
02
鼎流红盘再上新
张江新十年划时代产品力
保利天奕135新奢高定样板开放,带来了卷王级别的”舒适改善“王者!
本次135㎡户型,保利延续了此前的前瞻产品力,做到了尺度上的全面升级,从功能性四房跃升为“舒适改善型”四房!带来唐镇“人居新范式”!

三批次即将加推并计划本月开放样板间的170㎡户型更是整个小区的楼王产品!每一个户型保利都做到了“人无我有、人有我优!”,带来了更高配、更奢阔、更极致的产品体验!
上海首个可定制岩板!
新潘多拉、云中翡翠、弗朗明戈金三款岩板可定制。

超长南向卷轴景观视野,纵览190m中央景观花园
全小区最佳景观位,下沉式会所庭院景观一览无余!,真·下楼即可享受全球五大花园场景。


上海首个厨房高低台,更多基于客户视角的人本设计!
充分考虑人体工程学,将烹饪区设计的略低于水槽区,让您以更舒适的手臂角度掌勺翻炒、而在清洗果蔬冲刷碗碟时无需过度弯腰

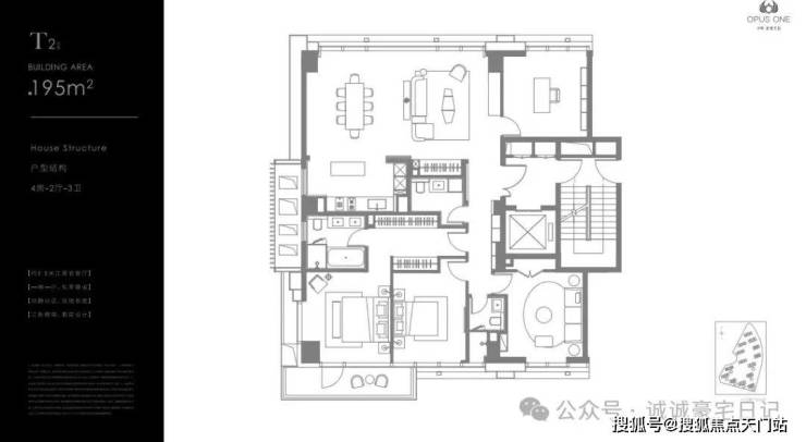
全明梯厅+类一梯一户+子母门 不属于千万级产品的越级体验
上海十分罕见的全明梯厅产品,采光及通风都是绝佳体验;类一梯一户私享约7-9㎡独立梯厅空间,搭配精雕子母铸铝门以及天奕logo造型、定制贝母的门把手、无接触归家的智能门锁,尊崇入户仪式感带来不属于千万级产品的越级体验!

女本位视角下打造多重女神卫浴——上海首个美妆四件套!
充分考虑到女性视角的日常使用习惯,配备了科勒美妍水龙头+美妆镜柜+美妆冰箱+顶光面光双补光照明!全维度守护女主人的魅力!同时淋浴间还设置了星级酒店式顶喷,带来全方位的度假享受!170㎡户型更是升级引入“双台盆 + 浴缸 + 淋浴” 的三段式设计,堪比五星级酒店套房。

早年的白金汉宫别墅群到玉兰花园大面积仅9.5万/㎡的成交成本!唐镇一直也是改善置业的首选之地,深受改善群体的喜爱!

据了解,保利天奕的四房户型一直是市场稀缺并且广泛受到客户认可的,前期成交均价约8.3万/㎡,最高成交均价约9万!保利天奕三批次推出全大户型产品,从118㎡到170㎡全面积段,满足张江新睿阶层从功能性改善到终极改善的全维度改善!可以说是唐镇大户型改善的最后上车机会了!
03
不复再有的唐镇C位
2号线地铁口+2大商业+3大学校全维顶配
地铁、配套、学校,对于浦东购房来说是极其重要的一个考量点。尤其是张江,地铁旁+好配套能为你剩下大量时间。
反观保利天奕,可谓是唐镇“前无古人,后无来者”的C位地段!
2号线唐镇站地铁口,占尽配套优势,拥有无人能及的“六边形战士”配套!

2号线地铁口
唐镇没有比保利天奕距2号线更近的项目!即便全上海也只有5%的项目离地铁约150米以内!3站张江高科,7站世纪大道,9站陆家嘴,无论通勤还是去市中心一线直达!

并且从目前标杆二手房市场看,越靠近2号线的项目,二手价格越高,倒挂也越明显!再来看保利天奕首开8万/m²的均价,真的太香了!

下楼就是2大商业
街对面就是阳光天地,约500米内还有恒生万鹂,拥有盒马、永辉等高端商超,满足日常所需。周边山姆会员店和唐镇印象汇也在建设中,未来将形成约60万方的商业体量。

2大名校毗邻
项目北侧步行范围内有福山唐城外国语小学、东方幼儿园(市级师范园)、建平培德实验中学(市重点),口碑和教育水平都在上海名列前茅。(免责:新房不承诺对口学区,以教育局发布为准)

2大医疗护航
医疗上,周边在建的胸科医院唐镇院区,车程范围内,还有上海中医大学附属曙光医院(三甲)、浦东中医院、浦东新区人民医院等多家医院。
4大公园环绕
家门口就是约1.7万方休闲绿地,附近还紧邻唐城绿地文化公园、唐镇公园(26.26公顷)、唐丰公园等众多公园,生态资源非常优越。
四大产业园强大产业自驱力
不像其他板块依附于张江产业辐射,唐镇拥有强大产业自驱力!2021年张江版图扩容,唐镇从此前的张江后花园,全域变为其东翼发展的核心引擎,能级上升好几个level!张江集电港、金融数据港、金城、金谷等多个产业园,自带强大产业自驱力,人才吸引效果明显。

保利天奕可以说是浦东少有的地铁、配套、产业、教育、品质全面顶配的项目!今后都不会再有了!
04
六维前瞻体系——
保利天奕的热销密码
建面约104-170㎡卷王户型 剩余225席 即将加推 错过再无
如今唐镇绿城、以及四兄弟几个前标杆社区,在二手房市场依旧表现抢眼,项目隔壁的绿城二期今年成交一套90m²小户型,单价9.1万,比保利天奕均价贵出近1W/m²!而周边四兄弟二手成交基本在8.5-9.3万/m²,其中大户型加上各种税费单价直冲9W+!
能造就这样坚挺的二手价格,本质是前瞻性的产品力,创造资产的“抗衰”!而随着张江迈进新十年,保利天奕带领产品力再度升级,用【六维前瞻体系】的产品力,锁定未来的价值增长空间!成为标杆红盘

①
前瞻标杆户型设计
全明梯厅+类一梯一户+S墙+social厨房
在户型布局上,保利天奕也属于是片区内开先河的存在!
尤其是三批次还会加推建面约135/170两个楼王户型,光看户型图就已足够惊艳!
建面约170m²楼王极作,浦东多代际家庭越级改善首选+酒店式双套房!
1.东4#楼王位置!整栋全部是约170m²的大户型,更加纯粹的改善圈层;同时位于东地块的正中央,既距离南面道路较远更安静,南面更可俯瞰社区中央景观,远眺外部休闲绿地双重景观!集所有视野优势于一身!
2.入户玄关空间就非常阔绰,搭配类一梯一户的梯厅空间,可以放下滑雪板、渔具、桨板等大尺寸的物品,完美承接多元爱好的收纳需求。
3.这个户型同样采用U型厨房,升级的点在于客厅可以容纳大圆桌,餐边柜也升级了酒店式mini bar的设计,提供酒柜、餐具等大容量收纳空间,同时也能放下咖啡机等小家电,一日三餐之外,延展出品酒、下午茶、咖啡吧等更多生活场景。
4.四房格局比其他四房产品更加优秀,但这套户型做了双私享套房设计,最大限度提高生活效率与仪式感。
5.主卧空间采用了类奢华酒店式的设计手法,除了约270°全景转角飘窗,卫生间采用了双台盆+独立淋浴间+奢感浴缸,能带来更松弛的日常度假感体验。

建面约135m²,仅1100万上车浦东宽奢改善明星户型!
1.首先在面积上,上海新房市场比较宜居的面积在145m²左右,那本户型135m²的面积就很合适了。
2.整个户型非常方正,宽敞的全明梯厅进来,就是独立的入户玄关柜,做到满分的仪式感和收纳空间。
3.客厅南北通,U型厨房操作台面极致宽敞,而且还利用飘窗提升台面深度,操作更顺手,台面也能放下更多厨具调料。
4.同样这个户型也做了非承重墙设计,南次卧可改造为卧室,或者打开成为超大横厅,适配更多元的家庭需求。
5.主卧格局也非常通透明亮,约270度超大无柱式转角飘窗,让居寝更加舒适,主卧卫生间双面采光,澄澈舒心。
6.全屋九个飘窗,不仅提升了空间利用率和收纳空间,也能获得更高得房率,质价比拉满!

千万级四房市场的锦鲤户型
建面约125m²,三房四房随心切换,多元代际家庭置业“最优解”!
1.南面四开间超大面宽,尽享门前1.7万方绿地景观;
2.同时为了满足现代多元家庭结构和生活方式,还利用非承重墙的精妙设计,创造出客厅X空间的可能,满足不同家庭在各个阶段的居住需求,全生命周期持续进化。

800万级三房市场,保利天奕可以说是没有对手!
建面约106m²,用0空间浪费的场景,创造自由social的家庭核心。
1.前沿中横厅设计,0走廊、0浪费的将碎片空间膨胀为家庭核心场景,在LDKB的基础上更加注重空间利用,小家也能拥有大空间尺度!


2.全屋飘窗+边户双约270°的转角飘窗,实际空间感十分优秀!

从户型共性上来说,每个户型都在各自有限空间内做到了极致的舒适度!
1.全明梯厅+类一梯一户(除104/106㎡):一次拥有2000万大平层“稀有款”!

2.创新S墙分户设计,让收纳系统从平面延展为立体暗线,通过玄关柜、冰箱柜、零食拉篮的巧思,用立体空间创造更海量收纳!

②
前瞻国际社区和美学设计
国际度假酒店门头&立面+新松弛度假景观
保利天奕汲取了雅典One&Only唯逸度假酒店打造手法,带来不同以往的建筑设计,高颜值且高气场!
1.国际化松弛感立面
蓝灰色玻璃+仿石铝板+艺术涂料材质,穿插优雅线条,让建筑这张“脸”看起来更高级。One&Only酒店式门头。用雕塑体块、温润弧面和雅致线条,营造具有艺术格调的归家仪式感。



2.约1.7万方休闲绿地+全球五大花园
保利天奕的园林设计,可以说是在张江乃至上海都独树一帜的存在!它通过红线内外一体化设计,打造了一整个“新松弛度假体系”,构建一个前所未有的,全龄共享的参与式景观。

外部,保利天奕主动向绿地退让10米,形成约1.7万方的半开放式休闲绿地。未来业主回家,出了地铁口,就能看到绿草如茵的景观,日常下楼就是公园,能享受亲子、休闲等丰富的度假功能。
内部,打造五座全球大师花园,米勒花园、岛屿水院、红酒派对花园、森林浴花园以及毕加索儿童乐园,再搭配八大主题乔木林带,把相距几千公里的旅行目的地搬到家楼下!

③
前瞻国际生活方式
约1500m²下沉式会所,十大前沿国际功能
片区内带会所的项目就屈指可数,保利天奕约1500m²奕CLUB会所,仅一张效果图就让整个张江会所设计进入next level!功能性足以媲美3000万级豪宅!

不仅配备常规的恒温泳池、健身、瑜伽、自习室、私宴厅、会客厅,还突破性的带来保龄球/砂壶娱乐空间,高压氧舱和桑拿等放松空间,七大功能空间,十大休闲场域,都是上海都极为罕见的设施!

④
前瞻超配国际装标
10W+豪宅同款品牌配置
精装标准上,这次保利也是大手笔,标配博世厨电五件套(油烟机、灶具、洗碗机、冰箱、烤箱),卫浴五金配置高仪、科勒的大师款;洁具采用了唯宝等百年奢牌,奢华感与分量感十足!
大户型入户还采用了铸铝子母门,表面经多道工艺处理,质感厚重而细腻,入户仪式感、尊贵感拉满,更兼顾实用与大气!真金白银的装修投入、超一线的国际品牌,最后都会转为二手房市场的价值共识!
⑤
前瞻人性化细节打造
女神四件套+可定制景墙+18项人本体系
保利天奕在精装上,不仅诚意满满,无论是配置还是人性化思考,都大大超出了8W均价的定价标准!
新她享——上海首个!女神卫浴四件套
保利天奕特别关注到女性的生活需求,专门在卫生间配备了美妆龙头、美妆镜柜、美妆冰箱,采用“顶+面双补光照明”,能把“女本位”需求做到如此细致,目前没有几个项目能做到!

新定制——上海首个可定制岩板背景墙
充分考虑业主的个性化需求,在电视背景板提供了新潘多拉、云中翡翠、弗朗明戈金三种结晶釉面岩板选择,成本更高,施工难度也更大。

新人本——18项高效生活便利体系
譬如说部分柜体更安全的圆角处理、高柜顶部一窥到底的镜面反光膜、大大提高空间利用的薄抽,不用弯腰一踢即开的踢脚抽设计,便利性大大增加;
部分户型厨房台面还做了高低台设计,这是上海新房市场上从来没有过的突破,让整个厨房动线更加合理,也减少了长时间弯腰带来的不适感,充分考虑到了未来居住的舒适性,这种产品颗粒度真的令人惊艳!

新颜值——美术馆级超高“奢材量”
项目大量使用奢石设计,客厅四边弧形天花、主卧树叶拼花地板、精致优雅的骨骼线设计,都是开发商花费更大成本和耗材去呈现更美的视觉体验。

新收纳——八大交付柜体+21大收纳区格
以100m²户型为例,总收纳量高达17.66m³,而一般户型只能做到14-15m³。其次是极致细分,21大收纳区格:
从5大收纳区的镂空玄关柜,到分类更细致的卫浴空间,再到厨房的5大分区,以及更惊喜的餐边柜,划分6大功能区,全屋收纳量飙升!



新智感——配置室内外双智慧大脑
室外空间:入户识别门禁+电动门无接触归家,儿童乐园高峰时段陪玩管家+高清摄像头,非机动车热成像摄像头+烟感+喷淋灭火装置,三大维度保证便捷安全的公共空间。
室内空间:引入了全屋智能家居系统,能通过App、中控、语音三大方式,调节全屋智能家居,包括客厅灯光、空调、地暖、新风、客厅和主卧窗帘等场景。
⑥
前瞻豪宅服务体系
保利高奢品牌“东方礼遇”全生命周期护航
现在豪宅服务越来越收到重视,服务体验其实是松弛感最重要的一个指标。保利物业具备强大的行业背书,斩获了“2025中国物业服务力百强企业第一名”、“2025中国物业服务企业品牌价值100强”、“2025中国高端物业服务力TOP20”等诸多荣誉,在业界具有非常高的口碑。

这次保利天奕引入的是保利物业体系内专属TOP级豪宅的服务品牌“东方礼遇”,以“全域安全”、“双管家服务”、“四节八礼社区活动”为核心,通过“全维5力+8大基础场景”的星级酒店式服务标准,定制更高端的体验。
同时还为奕CLUB 定制整套完善的额服务标准,放眼整个张江都是独一份的存在!
总的来说,保利天奕通过三大优势全面领先:
①8万均价的极致价格优势,抢占唐镇价值爆发窗口期
②唐镇C位全维顶配,后无来者的顶级王者地段
③六重前瞻标杆产品力,与区域拉开身位的资产成长性
无论是价格预期,还是地段配套,还是断层级领先的产品力,保利天奕都会是当下张江买房绝对的“质价比”之王!两开两罄收获市场热烈反响,三批次新品即将加推,位置更好,景观更优越,户型尺度更宽绰,期待值更加拉满!!
售楼处官方预约电话:400-829-7773☎☎☎如有问题可来电咨询,预约销售专员,一对一为您服务!
返回搜狐,查看更多
员,一对一为您服务!
浦东改善鼎流爆款再创现象级热销!
保利天奕三批次认购两天!累积认购93组,认购率95.9%,再获改善市场热捧!
认购现场可谓是人声鼎沸,认购客户络绎不绝!
项目火爆的一大原因,来自本次加推全部为舒适性四房,市场具有一定稀缺性,尤其还有建面约170m²的楼王产品,唐镇8年一遇!
预计又将再续“两开两罄”的热销势头,拭目以待!



三批次主推建面约170m²楼王大平层、建面约118-135m²卷王四房,入市均价84576元/m²!
可以说保利天奕三批次产品,是当前浦东改善客户必选项!
理由1:价格真香,抢到怒省百万+!
l建面约118m²:最低上车门槛仅910万起(2楼),低楼层全部9字头就能上车,浦东热门板块正地铁口买到可变四房产品,可谓是最优选择!
l 建面约125m²边套户型:四开间朝南+满飘窗赠送+类一梯一户设计,均价8.48万/m²价格要低于二批次同户型价格,975万即可上车!
l建面约135m²户型:尺度更大的舒适四房,均价在8.5万/m²,虽比首开提升1000元/m²,但作为项目逢开必罄的王牌户型,这个涨幅可谓是良心涨幅!
l 建面约170m²鼎序大平层:不仅是唐镇8年一遇的终极改善,均价只有8.55万/m²,仅比135m²户型高500元/m²,远远低于常规大平层户型几千元的溢价,质价比拉满!
理由2:C位楼王,纯粹大宅圈层!
本次加推东3#、东4#,均位于东地块第二排,饱览约180米的核心景观轴,以及5大花园与1500m²的奕生活服务中心,视野效果独一份!

理由3:产品升级,内环顶豪同款超配!
本次加推建面约170m²大平层,不仅户型升级为奢华双套房+主卫双台盆+浴缸,精装上更进阶嘉格纳+博世超一线品牌、客厅升级万象山河奢石景墙,装修标准比肩市中心顶豪!
理由4:唐镇核心C位,全维顶配!
享地铁黄金2号线口,2大商业、三大学校、门前约1.7万方休闲绿地,全维成熟配套,位置在唐镇无出其右!
此前项目建面约135m²/170m²两大样板间盛大开放,示范区丛林童梦岛升级亮相,收获全城鼎流关注! 本周六、周日,保利天奕将启动全新的“开学季”活动,迈阿密海滩主题泡泡大秀限时上演!感兴趣的大朋友小朋友们,一定不要错过!



保利天奕,两开两罄
张江新十年建面约104-170m²全新一代国际社区
恒温泳池会所,高压氧舱,保龄球馆
全明梯厅、女神四件套、10w+同款装标
2号线唐镇地铁口,3站张江,9站陆家嘴
三批次已取证
推出97套118-170㎡改善王牌产品
建面约170m²楼王大平层样板间已开放!
火爆认购中!
01
抢滩唐镇最佳窗口期
800万级已成唐镇“价格洼地”
保利天奕所在的唐镇板块,正在经历这样的价值爆发期!
从去年保利天奕溢价率26.6%,到上个月联发曹路地块40%溢价率,再到现在招商&港中旅地块40%的惊人溢价,未来新房预期已经在9W以上!相较之下,保利天奕仅8万/m²的均价,已经是唐镇新房市场的“价格洼地”。
要知道,保利天奕可是唐镇地铁口最后一块地,位于唐镇核心C位,六批次土拍不仅溢价率超高,距地铁也比保利天奕更远,无疑为保利天奕的性价比再度推波助澜!购房者抢在涨价之前上车,无疑是顺理成章!
目前保利天奕已经销售过半,全盘558套席位已售333套,整个项目仅剩225席!高溢价率的土拍市场,意味着现在不买,未来将面临出手就是100万的预算涨幅,同样预算只能买到次级板块新房,或者只能面积少一间房!保利天奕无疑是当前浦东购房的最高质价比优选!
02
鼎流红盘再上新
张江新十年划时代产品力
保利天奕135新奢高定样板开放,带来了卷王级别的”舒适改善“王者!
本次135㎡户型,保利延续了此前的前瞻产品力,做到了尺度上的全面升级,从功能性四房跃升为“舒适改善型”四房!带来唐镇“人居新范式”!

三批次即将加推并计划本月开放样板间的170㎡户型更是整个小区的楼王产品!每一个户型保利都做到了“人无我有、人有我优!”,带来了更高配、更奢阔、更极致的产品体验!
上海首个可定制岩板!
新潘多拉、云中翡翠、弗朗明戈金三款岩板可定制。

超长南向卷轴景观视野,纵览190m中央景观花园
全小区最佳景观位,下沉式会所庭院景观一览无余!,真·下楼即可享受全球五大花园场景。


上海首个厨房高低台,更多基于客户视角的人本设计!
充分考虑人体工程学,将烹饪区设计的略低于水槽区,让您以更舒适的手臂角度掌勺翻炒、而在清洗果蔬冲刷碗碟时无需过度弯腰

全明梯厅+类一梯一户+子母门 不属于千万级产品的越级体验
上海十分罕见的全明梯厅产品,采光及通风都是绝佳体验;类一梯一户私享约7-9㎡独立梯厅空间,搭配精雕子母铸铝门以及天奕logo造型、定制贝母的门把手、无接触归家的智能门锁,尊崇入户仪式感带来不属于千万级产品的越级体验!

女本位视角下打造多重女神卫浴——上海首个美妆四件套!
充分考虑到女性视角的日常使用习惯,配备了科勒美妍水龙头+美妆镜柜+美妆冰箱+顶光面光双补光照明!全维度守护女主人的魅力!同时淋浴间还设置了星级酒店式顶喷,带来全方位的度假享受!170㎡户型更是升级引入“双台盆 + 浴缸 + 淋浴” 的三段式设计,堪比五星级酒店套房。

早年的白金汉宫别墅群到玉兰花园大面积仅9.5万/㎡的成交成本!唐镇一直也是改善置业的首选之地,深受改善群体的喜爱!

据了解,保利天奕的四房户型一直是市场稀缺并且广泛受到客户认可的,前期成交均价约8.3万/㎡,最高成交均价约9万!保利天奕三批次推出全大户型产品,从118㎡到170㎡全面积段,满足张江新睿阶层从功能性改善到终极改善的全维度改善!可以说是唐镇大户型改善的最后上车机会了!
03
不复再有的唐镇C位
2号线地铁口+2大商业+3大学校全维顶配
地铁、配套、学校,对于浦东购房来说是极其重要的一个考量点。尤其是张江,地铁旁+好配套能为你剩下大量时间。
反观保利天奕,可谓是唐镇“前无古人,后无来者”的C位地段!
2号线唐镇站地铁口,占尽配套优势,拥有无人能及的“六边形战士”配套!

2号线地铁口
唐镇没有比保利天奕距2号线更近的项目!即便全上海也只有5%的项目离地铁约150米以内!3站张江高科,7站世纪大道,9站陆家嘴,无论通勤还是去市中心一线直达!

并且从目前标杆二手房市场看,越靠近2号线的项目,二手价格越高,倒挂也越明显!再来看保利天奕首开8万/m²的均价,真的太香了!

下楼就是2大商业
街对面就是阳光天地,约500米内还有恒生万鹂,拥有盒马、永辉等高端商超,满足日常所需。周边山姆会员店和唐镇印象汇也在建设中,未来将形成约60万方的商业体量。

2大名校毗邻
项目北侧步行范围内有福山唐城外国语小学、东方幼儿园(市级师范园)、建平培德实验中学(市重点),口碑和教育水平都在上海名列前茅。(免责:新房不承诺对口学区,以教育局发布为准)

2大医疗护航
医疗上,周边在建的胸科医院唐镇院区,车程范围内,还有上海中医大学附属曙光医院(三甲)、浦东中医院、浦东新区人民医院等多家医院。
4大公园环绕
家门口就是约1.7万方休闲绿地,附近还紧邻唐城绿地文化公园、唐镇公园(26.26公顷)、唐丰公园等众多公园,生态资源非常优越。
四大产业园强大产业自驱力
不像其他板块依附于张江产业辐射,唐镇拥有强大产业自驱力!2021年张江版图扩容,唐镇从此前的张江后花园,全域变为其东翼发展的核心引擎,能级上升好几个level!张江集电港、金融数据港、金城、金谷等多个产业园,自带强大产业自驱力,人才吸引效果明显。

保利天奕可以说是浦东少有的地铁、配套、产业、教育、品质全面顶配的项目!今后都不会再有了!
04
六维前瞻体系——
保利天奕的热销密码
建面约104-170㎡卷王户型 剩余225席 即将加推 错过再无
如今唐镇绿城、以及四兄弟几个前标杆社区,在二手房市场依旧表现抢眼,项目隔壁的绿城二期今年成交一套90m²小户型,单价9.1万,比保利天奕均价贵出近1W/m²!而周边四兄弟二手成交基本在8.5-9.3万/m²,其中大户型加上各种税费单价直冲9W+!
能造就这样坚挺的二手价格,本质是前瞻性的产品力,创造资产的“抗衰”!而随着张江迈进新十年,保利天奕带领产品力再度升级,用【六维前瞻体系】的产品力,锁定未来的价值增长空间!成为标杆红盘

①
前瞻标杆户型设计
全明梯厅+类一梯一户+S墙+social厨房
在户型布局上,保利天奕也属于是片区内开先河的存在!
尤其是三批次还会加推建面约135/170两个楼王户型,光看户型图就已足够惊艳!
建面约170m²楼王极作,浦东多代际家庭越级改善首选+酒店式双套房!
1.东4#楼王位置!整栋全部是约170m²的大户型,更加纯粹的改善圈层;同时位于东地块的正中央,既距离南面道路较远更安静,南面更可俯瞰社区中央景观,远眺外部休闲绿地双重景观!集所有视野优势于一身!
2.入户玄关空间就非常阔绰,搭配 类一梯一户的梯厅空间,可以放下滑雪板、渔具、桨板等大尺寸的物品,完美承接多元爱好的收纳需求。
3.这个户型同样采用 U型厨房,升级的点在于客厅可以容纳大圆桌,餐边柜也升级了酒店式mini bar的设计,提供酒柜、餐具等大容量收纳空间,同时也能放下咖啡机等小家电,一日三餐之外,延展出品酒、下午茶、咖啡吧等更多生活场景。
4.四房格局比其他四房产品更加优秀,但这套户型做了 双私享套房设计,最大限度提高生活效率与仪式感。
5.主卧空间采用了类奢华酒店式的设计手法,除了 约270°全景转角飘窗,卫生间采用了双台盆+独立淋浴间+奢感浴缸,能带来更松弛的日常度假感体验。

建面约135m²,仅1100万上车浦东宽奢改善明星户型!
1.首先在面积上,上海新房市场比较宜居的面积在145m²左右,那本户型135m²的面积就很合适了。
2.整个户型非常方正,宽敞的全明梯厅进来,就是独立的入户玄关柜,做到满分的仪式感和收纳空间。
3.客厅南北通,U型厨房操作台面极致宽敞,而且还利用飘窗提升台面深度,操作更顺手,台面也能放下更多厨具调料。
4.同样这个户型也做了 非承重墙设计,南次卧可改造为卧室,或者打开成为超大横厅,适配更多元的家庭需求。
5.主卧格局也非常通透明亮, 约270度超大无柱式转角飘窗,让居寝更加舒适,主卧卫生间双面采光,澄澈舒心。
6.全屋九个飘窗,不仅提升了空间利用率和收纳空间,也能获得更高得房率,质价比拉满!

千万级四房市场的锦鲤户型
建面约125m²,三房四房随心切换,多元代际家庭置业“最优解”!
1.南面四开间超大面宽,尽享门前1.7万方绿地景观;
2.同时为了满足现代多元家庭结构和生活方式,还利用 非承重墙的精妙设计,创造出客厅X空间的可能,满足不同家庭在各个阶段的居住需求,全生命周期持续进化。

800万级三房市场,保利天奕可以说是没有对手!
建面约106m²,用0空间浪费的场景,创造自由social的家庭核心。
1.前沿中横厅设计,0走廊、0浪费的将碎片空间膨胀为家庭核心场景,在LDKB的基础上更加注重空间利用,小家也能拥有大空间尺度!


2.全屋飘窗+边户双约270°的转角飘窗,实际空间感十分优秀!

从户型共性上来说,每个户型都在各自有限空间内做到了极致的舒适度!
1.全明梯厅+类一梯一户(除104/106㎡):一次拥有2000万大平层“稀有款”!

2.创新S墙分户设计,让收纳系统从平面延展为立体暗线,通过玄关柜、冰箱柜、零食拉篮的巧思,用立体空间创造更海量收纳!

②
前瞻国际社区和美学设计
国际度假酒店门头&立面+新松弛度假景观
保利天奕汲取了雅典One&Only唯逸度假酒店打造手法,带来不同以往的建筑设计,高颜值且高气场!
1.国际化松弛感立面
蓝灰色玻璃+仿石铝板+艺术涂料材质,穿插优雅线条,让建筑这张“脸”看起来更高级。One&Only酒店式门头。用雕塑体块、温润弧面和雅致线条,营造具有艺术格调的归家仪式感。



2.约1.7万方休闲绿地+全球五大花园
保利天奕的园林设计,可以说是在张江乃至上海都独树一帜的存在!它通过红线内外一体化设计,打造了一整个“新松弛度假体系”,构建一个前所未有的,全龄共享的参与式景观。

外部,保利天奕主动向绿地退让10米,形成约1.7万方的半开放式休闲绿地。未来业主回家,出了地铁口,就能看到绿草如茵的景观,日常下楼就是公园,能享受亲子、休闲等丰富的度假功能。
内部,打造五座全球大师花园, 米勒花园、岛屿水院、红酒派对花园、森林浴花园以及毕加索儿童乐园,再搭配八大主题乔木林带,把相距几千公里的旅行目的地搬到家楼下!

③
前瞻国际生活方式
约1500m²下沉式会所,十大前沿国际功能
片区内带会所的项目就屈指可数,保利天奕约1500m²奕CLUB会所,仅一张效果图就让整个张江会所设计进入next level!功能性足以媲美3000万级豪宅!

不仅配备常规的恒温泳池、健身、瑜伽、自习室、私宴厅、会客厅,还突破性的带来保龄球/砂壶娱乐空间,高压氧舱和桑拿等放松空间,七大功能空间,十大休闲场域,都是上海都极为罕见的设施!

④
前瞻超配国际装标
10W+豪宅同款品牌配置
精装标准上,这次保利也是大手笔,标配博世厨电五件套(油烟机、灶具、洗碗机、冰箱、烤箱),卫浴五金配置高仪、科勒的大师款;洁具采用了唯宝等百年奢牌,奢华感与分量感十足!
大户型入户还采用了 铸铝子母门,表面经多道工艺处理,质感厚重而细腻,入户仪式感、尊贵感拉满,更兼顾实用与大气!真金白银的装修投入、超一线的国际品牌,最后都会转为二手房市场的价值共识!
⑤
前瞻人性化细节打造
女神四件套+可定制景墙+18项人本体系
保利天奕在精装上,不仅诚意满满,无论是配置还是人性化思考,都大大超出了8W均价的定价标准!
新她享——上海首个!女神卫浴四件套
保利天奕特别关注到女性的生活需求,专门在卫生间配备了美妆龙头、美妆镜柜、美妆冰箱,采用“顶+面双补光照明”,能把“女本位”需求做到如此细致,目前没有几个项目能做到!

新定制——上海首个可定制岩板背景墙
充分考虑业主的个性化需求,在电视背景板提供了新潘多拉、云中翡翠、弗朗明戈金三种结晶釉面岩板选择,成本更高,施工难度也更大。

新人本——18项高效生活便利体系
譬如说部分柜体更安全的圆角处理、高柜顶部一窥到底的镜面反光膜、大大提高空间利用的薄抽,不用弯腰一踢即开的踢脚抽设计,便利性大大增加;
部分户型厨房台面还做了 高低台设计,这是上海新房市场上从来没有过的突破,让整个厨房动线更加合理,也减少了长时间弯腰带来的不适感,充分考虑到了未来居住的舒适性,这种产品颗粒度真的令人惊艳!

新颜值——美术馆级超高“奢材量”
项目大量使用奢石设计,客厅四边弧形天花、主卧树叶拼花地板、精致优雅的骨骼线设计,都是开发商花费更大成本和耗材去呈现更美的视觉体验。

新收纳——八大交付柜体+21大收纳区格
以100m²户型为例,总收纳量高达17.66m³,而一般户型只能做到14-15m³。其次是极致细分,21大收纳区格:
从 5大收纳区的镂空玄关柜,到分类更细致的卫浴空间,再到厨房的5大分区,以及更惊喜的餐边柜,划分6大功能区,全屋收纳量飙升!



新智感——配置室内外双智慧大脑
室外空间:入户识别门禁+电动门无接触归家,儿童乐园高峰时段陪玩管家+高清摄像头,非机动车热成像摄像头+烟感+喷淋灭火装置,三大维度保证便捷安全的公共空间。
室内空间:引入了全屋智能家居系统,能通过App、中控、语音三大方式,调节全屋智能家居,包括客厅灯光、空调、地暖、新风、客厅和主卧窗帘等场景。
⑥
前瞻豪宅服务体系
保利高奢品牌“东方礼遇”全生命周期护航
现在豪宅服务越来越收到重视,服务体验其实是松弛感最重要的一个指标。保利物业具备强大的行业背书,斩获了“2025中国物业服务力百强企业第一名”、“2025中国物业服务企业品牌价值100强”、“2025中国高端物业服务力TOP20”等诸多荣誉,在业界具有非常高的口碑。

这次保利天奕引入的是保利物业体系内专属TOP级豪宅的服务品牌“东方礼遇”,以“全域安全”、“双管家服务”、“四节八礼社区活动”为核心,通过“全维5力+8大基础场景”的星级酒店式服务标准,定制更高端的体验。
同时还为奕CLUB 定制整套完善的额服务标准,放眼整个张江都是独一份的存在!
总的来说,保利天奕通过三大优势全面领先:
①8万均价的极致价格优势,抢占唐镇价值爆发窗口期
②唐镇C位全维顶配,后无来者的顶级王者地段
③六重前瞻标杆产品力,与区域拉开身位的资产成长性
无论是价格预期,还是地段配套,还是断层级领先的产品力,保利天奕都会是当下张江买房绝对的“质价比”之王!两开两罄收获市场热烈反响,三批次新品即将加推,位置更好,景观更优越,户型尺度更宽绰,期待值更加拉满!!
售楼处官方预约电话:400-829-7773☎☎☎如有问题可来电咨询,预约销售专员,一对一为您服务!
返回搜狐,查看更多
售楼处官方预约电话:400-829-7773☎☎☎如有问题可来电咨询,预约销售专员,一对一为您服务!
编辑

黄浦江核心段 CAZ中央活动区
世博滨江 江景豪宅
「保利世博天悦」建面约174~251㎡ 3-5房
&建面约500㎡隐藏房源
总价约2300-1亿+
实景准现房
目前“样板间”已开放
编辑

「保利世博天悦」3号楼,小区前排的C位,是所有滨江顶豪中的VIP头等舱!270°江景视野,将S湾尽收眼底!建面约500m²的巨幕平墅即将登场!
此外前期还有部分房源可供选择,建面约174-252㎡,总价约2300万起,即将交付的实景准现房!
编辑

·建面约240㎡边套,采用L型转角落地窗,打造了270°环幕瞰江视野,无论身处客厅、餐厅,都能以不同角度眺望黄浦江的波光粼粼。
编辑

编辑

240m²边套样板房实拍
·建面约251㎡中间套,整体瞰江面高达约14米,独有双层挑高露台,未来业主可以将其打造成为私家空中花园,在繁华都市中独享静谧自然。
编辑

编辑

编辑

建筑面积约500m²一线滨江巨幕平墅
上海塔尖圈层俯瞰世界的专属坐席
·约35米L形巨幕观景台,双面瞰江带来前所未有的景观视野
编辑

编辑

示意效果图,过程稿仅供参考
相当于将纽约432 Park的顶层视野平移到了黄浦江,这样的大国景观台,未来不会再有!
业主在家里一抬头便是以江景和都市为主题的巨幅油画!
从清晨到日暮,无论是晨雾中的江轮剪影,还是夜幕下的两岸华灯,每一扇窗都是一幅名画,每一平方米都是城市的注脚
编辑

夜晚江景实拍
·4+1房&双豪华套房规制
OPUS ONE 500的双豪华套房尺度惊人,粗略预计面积均接近了55㎡
独立内玄关、阳台、起居厅、步入式衣帽间、双台盆浴缸卫生间一应俱全,既考虑了空间感又保持了独立性,创造出了一个高度聚合又能彼此独立的家庭化空间,尊贵私密空间在这里具象化!
·5个阳台,重新定义高端生活场景
客厅西侧的景观阳台、双豪华套房南侧的生活阳台(2个)、北侧瞰江的空中花园露台和书房阳台,在OPUS ONE 500,保利将江景、花园、星空和社交,统统装进生活半径
这些都只是OPUS ONE 500冰山一角,还有诸如2梯1户超大专属电梯厅、超大尺度的宴会厅等等,这里的每一处空间设计都让人眼前一亮!
编辑

示意效果图,过程稿仅供参考
毫不夸张地说,这座由LSD葛亚曦操刀打造的“空中行宫”带来的震撼,非真正亲临现场不能领略其绝代风采!
编辑

【项目鉴赏】
编辑

样板间鉴赏:
全户型图如下:
编辑

编辑

编辑

编辑

编辑

编辑

样板间实景图:
编辑

编辑

编辑

编辑

编辑

编辑

编辑

编辑

编辑

编辑

编辑

编辑

编辑

编辑

编辑

近年来,购房者对于产品力和兑现力的要求越来越高。
然而在期房销售为主流的上海楼市,即便售楼处再美如画、样板房再高大上,仍然有很多购房者因为“降标减配、货不对板”而苦恼。
那么如何才能最大程度避免“赌博式”买房呢?
当然是所见即所得的实景准现房!
但遗憾的是,上海市区准现房销售的新盘少之又少!
如果再加上一个黄浦江第一排的条件,那么全上海有且只有一个答案:保利世博天悦!
编辑

黄浦江约80米,塔尖级江景视野!
从刚刚结束的四批次土拍来看,徐汇滨江地块彻底杀疯了,7家房企经过72轮争夺报价,溢价率直接拉满30%,最终售价很可能超过18万!
但是值得注意的是,该地块红线直线距离最近的黄浦江岸大约400米(数据来源百度地图),再加上南北两侧均有高层建筑物遮挡,除了高区之外基本没有江景。
而谈及江景,直线距离黄浦江约80米的保利世博天悦堪称“江景之王”!
从地图来看,项目与汤臣一品和中粮海景壹号等顶豪住区享有相同的视野与距离,同频一线黄浦江景。
无论是一线滨江的地段,还是前期约16.8万/㎡的均价,相较于徐汇滨江地块可能18万+的售价,保利世博天悦的质价比非常突出!
编辑

一线滨江实景豪宅,品质看得见!
全上海独一无二的“类幕墙设计”立面,搭配上海首例“开放式铝板设计”,打造黄浦江畔地标新名片!
凭借最近约80米的一线江景优势,将黄浦江天然水资源引入社区,打造约3000㎡水景,并规划约6万㎡社区景观,力求每一寸土地都能发挥出最大的生态效益和观赏价值!
编辑

高标准产品力,穿越周期的诚意!
从选材来看,各种奢侈品级石材随处可见,比如与北京钓鱼台国宾馆同款的意大利进口鱼肚白石材,造价高达约2万/㎡,被誉为“世界上最贵的石材之一”!
从配置来看,仅对业主开放的约2600㎡艺术会所,不仅涵盖恒温泳池、酒窖、会客厅、健身房及行政酒廊式高定私宴厅等功能,而且还可以提供提供高级定制服务,排场不输五星级酒店!
从设计来看,独创上海滨江首个空中泳池户型,利用中间套双层挑高空间,预留泳池条件,整体瞰江面高达约14米!
从装标来看,大金、霍尼韦尔、当代、嘉格纳、威乃达、唯宝等一系列国际顶豪品牌加持,莫说整个黄浦江畔,放眼全市都堪称没有对手!
编辑

Part
01
一线滨江豪宅加推!
作为当下最值得期待的一线滨江实景大宅,保利世博天悦一期开盘时最高约26万/㎡江景房当天即罄,由此可见高净值购房者对于项目的认可,如今三期房源加推在即,确实更加值得期待了。
编辑

编辑

编辑

编辑

并且项目高区可以俯瞰黄浦江,相对于觉得大多数只能一面看江的滨江豪宅,保利世博天悦稀缺性与收藏价值更高!
编辑

编辑

装修标准这一块,保利世博天悦在整个黄浦江畔,乃至更是堪称全市都堪称没有对手!
且不提霍尼韦尔、当代、嘉格纳、威乃达、唯宝等一系列国际顶豪品牌,即便是在装修细节方面也能轻松拿捏竞品。
编辑

编辑

Part
02
一线滨江住宅,进阶更好的圈层!
保利世博天悦主力总价约2500-3000万,3000万以内甚至有机会选到看江房源!
与目前市面上绝大多数2500-3000万级项目,项目一线滨江的地段便已经赢在起跑线上了:
因为就算少量房源没有江景,但是社区就在江边啊,下楼就可以感受江景,同样的价格享受黄浦江核心段一线滨江的生活方式,散步、慢跑、滑板、骑行等等……
编辑

更重要的是,保利世博天悦还是为数不多可以双面瞰江的住宅,这也让项目的收藏价值大大提升。
Part
03
满级规划+全维度塔尖资源荟萃世博!
保利世博天悦位于浦东世博滨江板块,这里拥有两大满级“BUFF”叠加:世博滨江CAZ+世博-前滩城市主中心,未来期待值拉满!
中央活动区:“世博-前滩-徐汇滨江地区”
中央活动区作为上海未来发展的重要代表,将承担起全球城市核心功能的重要角色,成为城市形象的集中展示区域,为城市的发展注入新的活力和动力,堪称“市中心的中心”。
保利世博天悦不仅位于规划中的黄浦江核心段,而且地处与外滩、陆家嘴同能级的“世博-前滩-徐汇滨江地区”。
编辑

城市主中心:“世博-前滩城市主中心”
同时,保利世博天悦所在的世博滨江已经全面升级为城市主中心!
3月26日,浦东新区土地市场座谈会公布:至2035年,浦东还将新增“世博-前滩城市主中心”,新增张江、金桥、川沙3个城市副中心。
城市主中心,从字面意义上来看,规划能级与南京西路、人民广场、新天地、外滩、陆家嘴等传统核心区并驾齐驱,使世博滨江能级进一步升级,将成为具备全球影响力的世界级滨水区。
编辑

如果说地段能级决定保利世博天悦的下限;板块内难以复制的满级资源,才是项目真正的价值护城河,无一不是汇聚了上海文化生活的精髓。
曾经的万国博览的盛会为区域注入了世界文化汇聚的底色,如今的世博板块不仅包含文化、艺术、博览、国际体育等多元化中心,还受益于CAZ集聚总部经济的功能定位,发展成为央企总部、国际企业聚集区和浦东第二政务办公中心,目前已有26家央企的近80家公司集聚世博片区。
编辑

保利世博天悦距离浦东内环直线约670米,离陆家嘴直线距离约4.5公里。
周边路网极为发达,“两桥两隧四地铁”(南浦大桥、卢浦大桥、西藏南路及打浦路隧道、6、7、8、19号线),西侧比邻世博大道、东侧比邻雪野路。
项目距离19号线华丰路站仅约300多米,可链接陆家嘴、北外滩等上海其他地标方向,便捷通勤处处快人一步。
编辑

作为上海唯一具备沿江演艺带集聚的地区,保利世博天悦项目周边坐拥13座世界顶级大型文化场馆,展演空间体量超过6万坐席。包括:梅德塞斯奔驰文化展示中心、BMW汽车文化体验中心、中华艺术宫、上海世博展览馆、上海大歌剧院、世博大舞台、万国体育中心、世界花卉园、温室花园以及中国首座国际顶级赛事标准的永久性马术赛场馆——国际马术中心等生态功能场馆等高能级文化场馆串珠成链。
编辑

据统计,世博地区每年承办的大型文体活动场次超过700场,占据浦东总活动数量的40%,占据全上海总活动数量的18%,每年吸引客流超千万人次!
编辑

值得一提的是,世博对岸的徐汇滨江将集中建设20多座艺术美术馆,与世博滨江隔江相望。
更重要的是,上海市正积极筹划建设首条跨江缆车,该缆车将横跨黄浦江,连接徐汇西岸与世博滨江板块,从而打造一条世界级的顶奢艺术带,展现黄浦江畔的独特魅力与艺术风采。
编辑

目前,世博片区已集聚了新开发银行(NDB)、世界核电运营者协会(英国)上海代表处(WANO)、法国国际商会上海代表处(ICC)等16家国际经济组织,主要集中在经贸规则、资源配置、国际仲裁三大领域,占浦东国际经济组织总数50%以上,为浦东提升国际形象和影响力、增强城市软实力等方面发挥了积极作用。
编辑

保利世博天悦南侧占据上海中心城区唯一一个“有山有水”的宝地:世博文化公园。
世博文化公园占地200公顷,已经是上海中心城区最大的城市公园。
从距离来看,项目直线距离世博文化公园仅约1.5公里,可直接俯瞰整个公园。
从规模来看,世博文化公园的占地面积是伦敦海德皇家花园的1.25倍,是世纪公园的1.42倍,是大宁公园的2.94倍!
编辑

更重要的是,世博文化公园还拥有上海中心城区内唯一“山景”。
公园内最大标志性景观“双子山”,由两座高度不等的山体组成,最高峰约48米,也是国内第一座高度超过40米的空腔人工仿自然山林。
编辑

编辑

黄浦江核心段 CAZ中央活动区
世博滨江 江景豪宅
「保利世博天悦」建面约174~251㎡ 3-5房
&建面约500㎡隐藏房源
总价约2300-1亿+
实景准现房
目前“样板间”已开放
售楼处官方预约电话:400-829-7773☎☎☎如有问题可来电咨询,预约销售专员,一对一为您服务!
编辑
返回搜狐,查看更多
